ODC Vastgoed
ODC Vastgoed
Verkocht onder voorbehoud:Ruys de Beerenbroucklaan 58, 6129 HD Urmond - Foto
Verkocht onder voorbehoud
+36

Ruys de Beerenbroucklaan 58 6129 HD Urmond € 315.000,- k.k.

  • Woonhuis
  • 3 kamers
  • 2 slaapkamers
  • 1 badkamer
  • Bouwjaar 1960
  • 232 m² perceeloppervlakte
  • 94 m² gebruiksoppervlakte
  • C Energielabel C

Beschrijving

Aan een rustige straat in Urmond ligt deze nette en goed onderhouden twee onder een kapwoning met eigen oprit en vrijstaande garage. De woning is door de jaren heen keurig verzorgd en beschikt over fijne leefruimtes, een open keuken en momenteel twee volwaardige slaapkamers, met de mogelijkheid om eenvoudig een derde slaapkamer te realiseren.
De woning is voorzien van kunststof kozijnen met HR++ beglazing, 8 zonnepanelen (eigendom) en maar liefst twee airco-installaties (woonkamer en hoofdslaapkamer), wat zorgt voor een aangenaam woonklimaat.

De woonkamer is ruim en licht dankzij de grote raampartijen aan de voorzijde. Aan de achterzijde bevindt zich de open keuken met volop werk- en kastruimte, die via de grote schuifpui in directe verbinding staat met de achtertuin. Vanuit de keuken is tevens de kelder bereikbaar, waar zich extra bergruimte en de witgoedaansluitingen bevinden. Op de eerste verdieping is naast de twee slaapkamers een inloopkast aanwezig, die na een relatief eenvoudige aanpassing weer kan worden ingericht als derde slaapkamer. Dit maakt de woning geschikt voor verschillende woonwensen, zowel nu als in de toekomst. Verder is er een bergzolder aanwezig en beschikt de woning over een verzorgde voortuin en een onderhoudsvriendelijke achtertuin met voldoende privacy. De tuin biedt directe toegang tot de vrijstaande garage.

Urmond kenmerkt zich door zijn centrale ligging en dorpse karakter. In de directe omgeving zijn basisvoorzieningen zoals een supermarkt, scholen en sportfaciliteiten aanwezig. Daarnaast ligt winkelcentrum Stein op korte afstand voor een breder aanbod aan winkels. Uitvalswegen richting Maastricht, Sittard en Heerlen zijn snel bereikbaar en ook diverse wandelgebieden bevinden zich op korte afstand.

Indeling

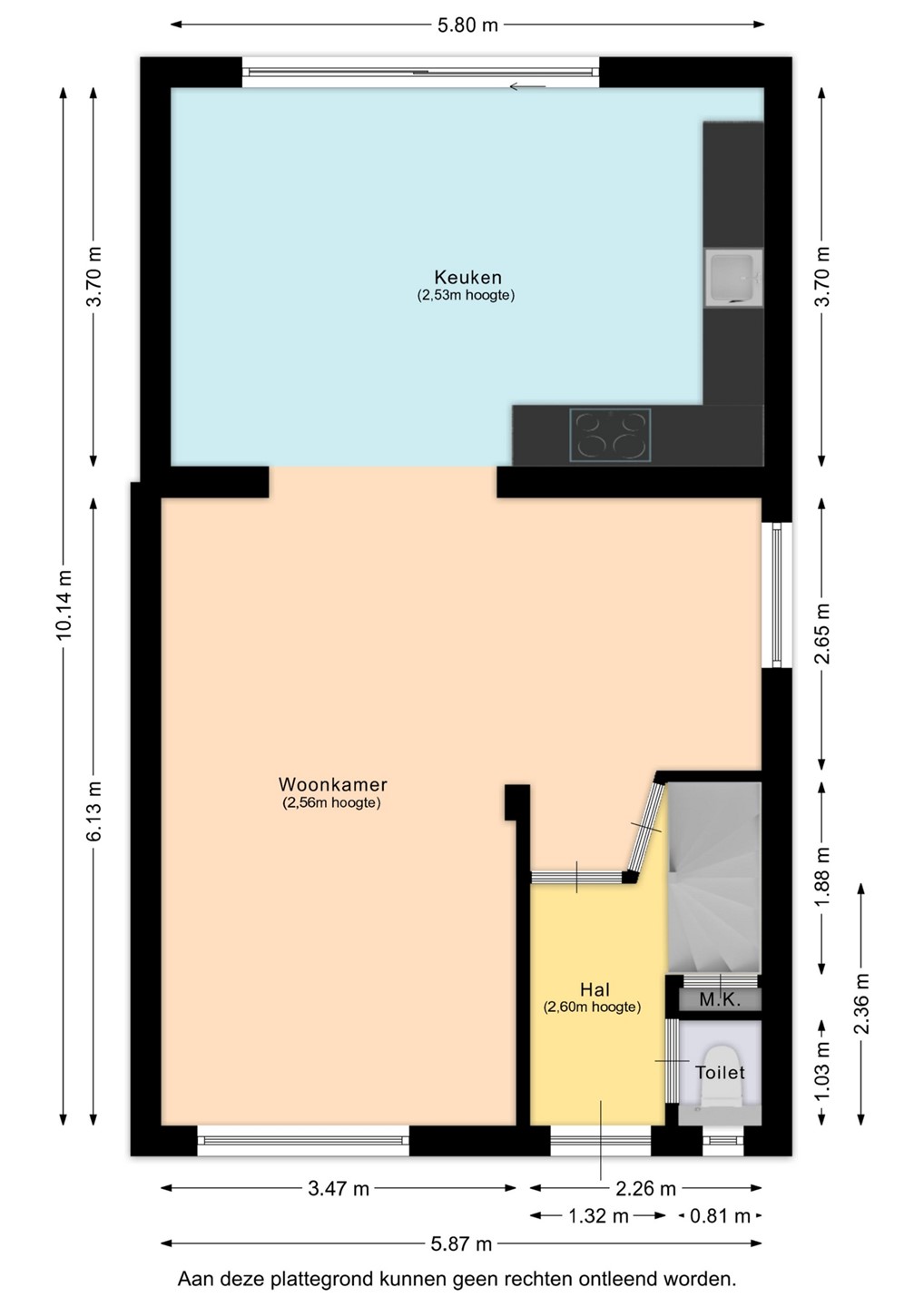
Via de eigen oprit bereik je de woning, waar de verzorgde voortuin direct een nette eerste indruk geeft en zorgt voor een prettige binnenkomst. Bij binnenkomst in de ontvangsthal valt de praktische indeling direct op. De hal is afgewerkt met een tegelvloer en biedt toegang tot de meterkast en het toilet. Het toilet is uitgevoerd met een zwevend closet en beschikt over een raampje met HR++ beglazing, wat zorgt voor natuurlijke ventilatie en daglicht.

Vanuit de hal kom je in de woonkamer, die ruim is opgezet en zich kenmerkt door een prettige lichtinval dankzij de grote raampartijen aan de voorzijde. Hierdoor voelt de ruimte open en aangenaam aan gedurende de dag. De woonkamer is afgewerkt met een laminaatvloer en voorzien van kunststof kozijnen met HR++ beglazing en een rolluik aan de voorzijde. De indeling biedt voldoende ruimte voor zowel een zit- als eetgedeelte, waardoor de ruimte flexibel in te richten is. De aanwezige airco-installatie zorgt hier voor extra comfort, zowel tijdens warme zomerdagen als in de koudere maanden.

De open keuken staat in directe verbinding met de woonkamer en vormt een ruime leefkeuken met voldoende plaats voor een grote eettafel. Dankzij de grote schuifpui aan de achterzijde staat deze ruimte in open contact met de tuin en valt er veel daglicht binnen. De keuken is afgewerkt met een tegelvloer en biedt volop kast- en werkruimte, waardoor deze zeer geschikt is voor dagelijks gebruik. Daarnaast is de keuken voorzien van diverse inbouwapparatuur, waaronder een 4-pits inductiekookplaat, afzuigkap, heteluchtoven, koelkast en vaatwasser. Ook hier zijn kunststof kozijnen met HR++ beglazing aanwezig, wat bijdraagt aan het wooncomfort. Tevens is er vanuit de keuken de provisiekelder bereikbaar, voorzien van witgoedaansluitingen.

Eerste verdieping

Via een houten trap bereik je de eerste verdieping. De overloop is afgewerkt met een laminaatvloer en beschikt over kunststof kozijnen met melkglas, wat zorgt voor daglicht met behoud van privacy. Daarnaast is er toegang tot een praktisch berghok voor extra opslag. De verdieping beschikt over twee slaapkamers, beide van goed formaat en prettig in gebruik. De kamers zijn afgewerkt met laminaatvloeren, voorzien van kunststof kozijnen met HR++ beglazing en rolluiken. Dankzij de raampartijen valt er veel daglicht binnen, wat de ruimtes licht en aangenaam maakt. De hoofdslaapkamer aan de voorzijde is daarnaast uitgerust met een airco-installatie en beschikt over een aangrenzende inloopkast. Deze inloopkast vormt een mooie aanvulling op de slaapkamer, maar kan met een relatief eenvoudige aanpassing weer worden teruggebracht naar een derde slaapkamer.
De badkamer is volledig betegeld en verzorgd uitgevoerd. Deze is ingericht met een inloopdouche met glazen douchewand, een badkamermeubel met wastafel en spiegel, en een designradiator. Het geheel vormt een functionele en nette ruimte voor dagelijks gebruik.

Tweede verdieping

Via een vlizotrap is de tweede verdieping bereikbaar. Hier bevindt zich de bergzolder met de cv-installatie en is er voldoende ruimte voor het opslaan van seizoensspullen en overige zaken.

Tuin

De achtertuin is verzorgd en onderhoudsvriendelijk aangelegd met een combinatie van bestrating en een stuk kunstgras. Hierdoor is er een prettige balans tussen groen en gebruiksgemak. Direct achter de woning is voldoende ruimte voor het creëren van een comfortabel zitgedeelte, terwijl er daarnaast nog plek is voor bijvoorbeeld een eettafel, loungehoek of speelruimte. De indeling maakt het eenvoudig om de tuin naar eigen wens in te richten.

Dankzij de situering geniet je hier van een goede mate van privacy, waardoor het een fijne plek is om buiten te verblijven, zowel overdag als in de avonduren. De tuin is bovendien praktisch ingericht en goed bereikbaar, wat het dagelijks gebruik aangenaam maakt.

Een extra pluspunt is de directe toegang tot de vrijstaande garage, zowel vanuit de tuin als via de oprit. De garage is voorzien van houten deuren, elektra en een vinyl vloer en biedt daardoor diverse gebruiksmogelijkheden. Denk aan het stallen van spullen of het inrichten als hobby- of werkruimte.

Bijzonderheden

- Energielabel C
- 8 zonnepanelen (eigendom)
- Twee airco installaties (eigendom) in woonkamer en hoofdslaapkamer
- Kunststof kozijnen met HR++ beglazing
- Rolluiken aanwezig
- Open keuken met complete inbouwapparatuur
- Provisiekelder met witgoedaansluitingen
- Twee slaapkamers met mogelijkheid tot een derde slaapkamer
- Volledig betegelde badkamer met inloopdouche
- Bergzolder met cv-installatie
- Onderhoudsvriendelijke tuin met privacy
- Vrijstaande garage met elektra

De informatie is met de nodige zorgvuldigheid door ons samengesteld. Er kunnen geen rechten worden ontleend aan deze advertentie en brochure en aanvaarden wij geen enkele aansprakelijkheid voor enige onvolledigheid, onjuistheid of anderszins, dan wel de gevolgen daarvan. Maatvoeringen en oppervlakten zijn indicatief.

Kaart

Kenmerken

Overdracht

Referentienummer
00178
Vraagprijs
€ 315.000,- k.k.
Inrichting
Niet gestoffeerd
Inrichting
Niet gemeubileerd
Status
Verkocht onder voorbehoud
Aanvaarding
In overleg
Aangeboden sinds
Vrijdag 17 april 2026
Laatste wijziging
Donderdag 7 mei 2026

Bouw

Type object
Woonhuis, eengezinswoning, twee onder een kap woning
Soort bouw
Bestaande bouw
Bouwperiode
1960
Dakbedekking
Dakpannen
Type dak
Zadeldak
Isolatievormen
Dubbel glas
HR-glas

Oppervlaktes en inhoud

Perceeloppervlakte
232 m²
Woonoppervlakte
94 m²
Inhoud
360 m³
Oppervlakte overige inpandige ruimten
11 m²
Oppervlakte externe bergruimte
13 m²

Indeling

Aantal bouwlagen
3 (en 1 kelder)
Aantal kamers
3 (waarvan 2 slaapkamers)
Aantal badkamers
1 (en 1 apart toilet)

Locatie

Ligging
Aan rustige weg
In woonwijk
Nabij snelweg

Tuin

Type
Voortuin
Staat
Goed onderhouden
Tuin 2 - Type
Achtertuin
Tuin 2 - Heeft een achterom
Ja
Tuin 2 - Staat
Goed onderhouden

Energieverbruik

Energielabel
C

CV ketel

CV ketel
Nefit
Warmtebron
Gas
Bouwjaar
2024
Combiketel
Ja
Eigendom
Eigendom

Uitrusting

Aantal parkeerplaatsen
2
Aantal overdekte parkeerplaatsen
1
Warm water
CV-ketel
Verwarmingssysteem
Airconditioning
Centrale verwarming
Keukenvoorzieningen
Inbouwapparatuur
Badkamervoorzieningen
Inloopdouche
Wastafel
Parkeergelegenheid
Vrijstaande stenen garage
Heeft airco
Ja
Glasvezelaansluiting aanwezig
Ja
Tuin aanwezig
Ja
Heeft een garage
Ja
Heeft rolluiken
Ja
Heeft schuur/berging
Ja
Heeft een schuifpui
Ja
Heeft zonnepanelen
Ja

Kadastrale gegevens

Kadastrale aanduiding
Stein C 1026
Perceeloppervlakte
232 m²
Omvang
Geheel perceel
Eigendomsituatie
Eigen grond

Brochure(s) en overige bijlagen

Ruys de Beerenbroucklaan 58 Urmond.pdf Download