Verkocht onder voorbehoud:Ruys de Beerenbroucklaan 50, 6129 HD Urmond - Foto
Verkocht onder voorbehoud
+36

Ruys de Beerenbroucklaan 50 6129 HD Urmond € 300.000,- k.k.

  • Woonhuis
  • 4 kamers
  • 3 slaapkamers
  • 1 badkamers
  • Bouwjaar 1956
  • 264 m² perceeloppervlakte
  • 131 m² gebruiksoppervlakte
  • D Energielabel D

Beschrijving

Op een rustige en geliefde locatie in Urmond staat deze verzorgde twee onder een kapwoning met aanbouw, garage en een diepe, onderhoudsvriendelijke tuin. Een fijne plek waar ruimte, licht en gebruiksgemak mooi samenkomen. De woning ligt in een gemoedelijke woonstraat met alle dagelijkse voorzieningen in de buurt: scholen, winkel, sportvelden en uitvalswegen zijn allemaal goed bereikbaar.

De woning is in de loop der jaren netjes onderhouden en voorzien van kunststofkozijnen met HR++ glas en rolluiken, wat bijdraagt aan een comfortabel woonklimaat. Dankzij de aanbouw aan de achterzijde is er extra leefruimte op de begane grond en voelt het geheel verrassend ruim.
De grindvloer die doorloopt vanuit de hal naar de woonkamer en keuken zorgt voor een rustige basis en is eenvoudig in onderhoud.

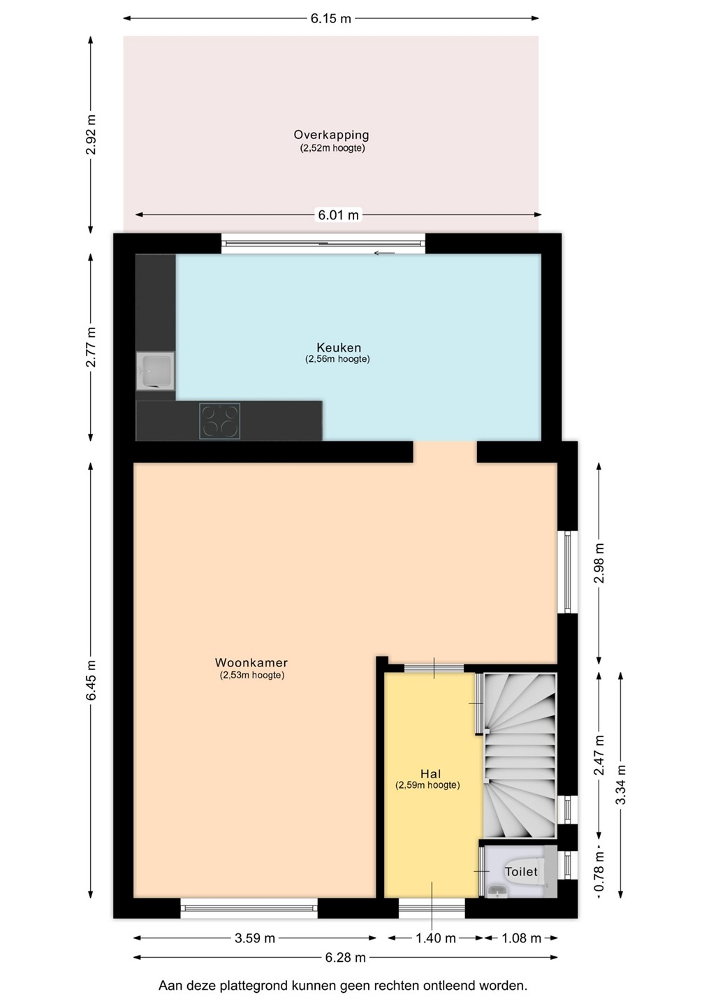
Binnen tref je een lichte woonkamer, een halfopen keuken met schuifpui naar de overkapping en op de verdieping drie goed bruikbare slaapkamers en een complete badkamer. Daarnaast beschikt de woning over een praktische kelder, een bergzolder en een garage met elektra en water.
Ideaal voor wie extra opbergruimte of een hobbyplek nodig heeft.

Indeling

Je komt aan bij de verzorgde voortuin en de ruime oprit die doorloopt naar de garage.
Binnenkomend in de hal valt de grindvloer meteen op: onderhoudsvriendelijk, strak en passend bij de rest van de begane grond. In de hal bevinden zich de garderobe, het toilet met fonteintje en de toegang tot de kelder. De kelder is een echte bergruimte met voldoende plek voor opslag. Hier vind je ook de witgoedaansluitingen, ideaal om de wasmachine en droger uit de leefruimtes te houden.

De woonkamer is licht en ruimtelijk dankzij de grote ramen aan de voor- en achterzijde. Ook hier ligt een grindvloer die het geheel een rustige uitstraling geeft. De kunststofkozijnen met HR++ glas en de rolluiken zorgen voor comfort, privacy en een aangename temperatuur in alle seizoenen. Vanuit de woonkamer loop je door naar de keuken.

De halfopen keuken is praktisch ingedeeld met veel werk- en kastruimte. De grindvloer loopt hier mooi door. De keuken is uitgerust met: 4-pits inductiekookplaat, afzuigkap, koelkast en vaatwasser.
Door de schuifpui aan de achterzijde heb je rechtstreeks toegang tot de overkapping in de tuin, waardoor binnen en buiten makkelijk in elkaar overlopen.

Eerste verdieping

Via de houten trap, die is afgewerkt met dezelfde grindvloer als beneden, bereik je de eerste verdieping. De overloop is licht dankzij het raam met HR++ glas en biedt toegang tot drie slaapkamers en de badkamer.

De drie slaapkamers zijn netjes afgewerkt en hebben allemaal een laminaatvloer, kunststofkozijnen met HR++ glas en rolluiken. Door de hoeveelheid daglicht voelen de kamers ruim en prettig aan. Ze zijn stuk voor stuk praktisch in te delen: ideaal als hoofdslaapkamer, kinderkamer, werkkamer of hobbyruimte, afhankelijk van jouw wensen.

De badkamer ligt centraal op de verdieping en is uitgevoerd met een tegelvloer, een ligbad met douche, een badkamermeubel met wasbak en spiegel, een toilet en een radiator. Dankzij het aanwezige rolluik kun je de ruimte goed verduisteren en blijft het er aangenaam koel, zelfs op warme dagen.

De tweede verdieping is bereikbaar via een vlizotrap. Hier bevindt zich een bergzolder. Op de zolder vindt men ook de cv-installatie.

Tweede verdieping

Achter de woning ligt de garage, voorzien van een dubbele deur, elektra en water. Een praktische ruimte die uitstekend geschikt is voor hobby’s, opslag of het stallen van fietsen en motoren.

Vanuit de oprit loop je direct door naar de achtertuin, die volledig is omheind en daardoor veel privacy biedt. De tuin is betegeld, waardoor je weinig onderhoud hebt en de grote overkapping aan de woning zorgt ervoor dat je hier in elk seizoen fijn kunt zitten.

Tuin

Achter de woning ligt de garage, voorzien van een dubbele deur, elektra en water. Een praktische ruimte die uitstekend geschikt is voor hobby’s, opslag of het stallen van fietsen en motoren.

Vanuit de oprit loop je direct door naar de achtertuin, die volledig is omheind en daardoor veel privacy biedt. De tuin is betegeld, waardoor je weinig onderhoud hebt en de grote overkapping aan de woning zorgt ervoor dat je hier in elk seizoen fijn kunt zitten.

Bijzonderheden

Energielabel D
Garage met elektra en water
Grindvloer op begane grond, hal en trap
Kunststofkozijnen met HR++ glas
Rolluiken aanwezig
Halfopen keuken met inbouwapparatuur
Drie slaapkamers op de eerste verdieping
Kelder met witgoedaansluitingen
Diepe, onderhoudsvriendelijke tuin met overkapping

De informatie is met de nodige zorgvuldigheid door ons samengesteld. Er kunnen geen rechten worden ontleend aan deze advertentie en brochure en aanvaarden wij geen enkele aansprakelijkheid voor enige onvolledigheid, onjuistheid of anderszins, dan wel de gevolgen daarvan. Maatvoeringen en oppervlakten zijn indicatief.

Kaart

Kenmerken

Overdracht

Referentienummer
00130
Vraagprijs
€ 300.000,- k.k.
Inrichting
Niet gestoffeerd
Inrichting
Niet gemeubileerd
Status
Verkocht onder voorbehoud
Aanvaarding
In overleg
Aangeboden sinds
Vrijdag 21 november 2025
Laatste wijziging
Maandag 15 december 2025

Bouw

Type object
Woonhuis, eengezinswoning, twee onder een kap woning
Soort bouw
Bestaande bouw
Bouwperiode
1956
Dakbedekking
Dakpannen
Type dak
Zadeldak
Isolatievormen
Dubbel glas

Oppervlaktes en inhoud

Perceeloppervlakte
264 m²
Woonoppervlakte
131 m²
Inhoud
456 m³
Oppervlakte overige inpandige ruimten
8 m²

Indeling

Aantal bouwlagen
3
Aantal kamers
4 (waarvan 3 slaapkamers)
Aantal badkamers
1 (en 1 apart toilet)

Locatie

Ligging
Aan rustige weg
Dichtbij openbaar vervoer
In woonwijk
Nabij snelweg

Tuin

Type
Achtertuin
Tuin 2 - Type
Achtertuin

Energieverbruik

Energielabel
D

CV ketel

CV ketel
Nefit Econline HR
Warmtebron
Gas
Bouwjaar
2005
Combiketel
Ja
Eigendom
Eigendom

Uitrusting

Aantal parkeerplaatsen
2
Aantal overdekte parkeerplaatsen
1
Warm water
CV-ketel
Verwarmingssysteem
Centrale verwarming
Badkamervoorzieningen
Douche
Ligbad
Toilet
Wastafel
Wastafelmeubel
Parkeergelegenheid
Aangebouwde stenen garage
Glasvezelaansluiting aanwezig
Ja
Tuin aanwezig
Ja
Heeft een garage
Ja
Beschikt over een internetverbinding
Ja
Heeft rolluiken
Ja
Heeft een schuifpui
Ja
Heeft zonnepanelen
Ja

Kadastrale gegevens

Kadastrale aanduiding
Stein C 125
Perceeloppervlakte
264 m²
Eigendomsituatie
Eigen grond

Brochure(s) en overige bijlagen

Ruys de Beerenbroecklaan 50 Urmond.pdf Download