ODC Vastgoed
ODC Vastgoed
Verkocht:Raadhuisstraat 48, 6129 CE Urmond - Foto
Verkocht
+49

Raadhuisstraat 48 6129 CE Urmond

  • Woonhuis
  • 4 kamers
  • 3 slaapkamers
  • 1 badkamers
  • Bouwjaar 1958
  • 261 m² perceeloppervlakte
  • 125 m² gebruiksoppervlakte
  • B Energielabel B

Beschrijving

Bent u op zoek naar een verzorgde, direct bewoonbare woning waar u zo in kunt trekken? Dan is deze instapklare ruime tussenwoning aan de Raadhuisstraat 48 in Urmond zeker het bekijken waard. De woning is de afgelopen jaren grondig gemoderniseerd met oog voor comfort, duurzaamheid en stijl. Met onder andere een nieuw pannendak én plat dak met isolatie, 12 glas-glas zonnepanelen (2022), HR++-beglazing, airconditioning in de woonkamer en master bedroom en een verzorgde achtertuin, combineert dit huis eigentijdse luxe met energiezuinig wonen.

Een bijzonder pluspunt is de ligging van de achtertuin: deze grenst aan de rustige kanaalzijde, zonder directe bebouwing. Vanuit de tuin heeft u veel privacy en ziet u soms de grote schepen voorbijvaren, terwijl u vanuit de slaapkamers aan de achterzijde het kanaal achter de schutting kunt zien liggen. Dit zorgt voor een rustig en uniek uitzicht.

De woning ligt in het karakteristieke oude dorp van Urmond, tussen het Julianakanaal en de Maas. Het is een rustige en gemoedelijke woonomgeving met vooral woningen en enkele historische panden. Scholen en dagelijkse voorzieningen liggen op korte afstand en zijn eenvoudig bereikbaar. Bovendien vindt u in de directe omgeving prachtige natuur met mooie wandel- en fietsroutes langs het kanaal, de Maas en door het Limburgse landschap. Via de nabijgelegen uitvalswegen bereikt u bovendien snel de A2 en A76 richting Maastricht, Sittard of Heerlen.

Indeling

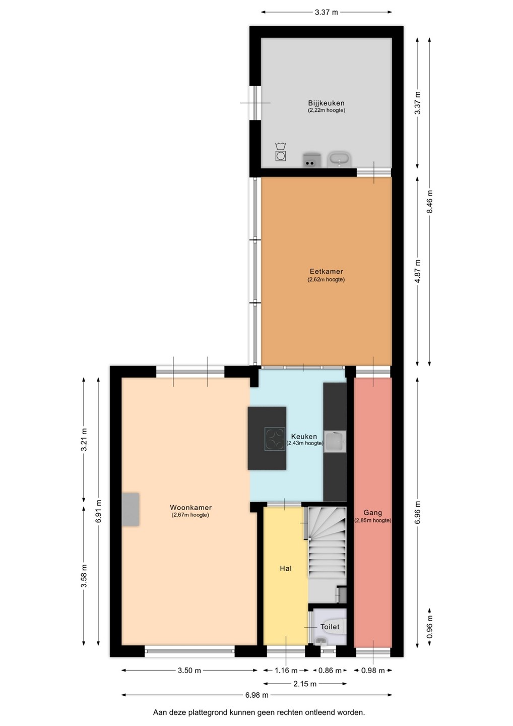
Bij aankomst valt direct de verzorgde, onderhoudsvriendelijke voortuin op, met een eigen oprit voor één auto. De entree heeft een sfeervolle Portugese Azule-tegelvloer, garderobe en een modern toilet met fonteintje. Vanuit de hal heeft u toegang tot de provisiekelder, ideaal als extra bergruimte.
De gehele begane grond voelt direct ruim en licht aan, mede dankzij de hoge plafonds die zowel in de woonkamer als in de keuken en eetkamer voor een prettige, open sfeer zorgen.

De open keuken is een echte blikvanger: uitgevoerd met een centraal kookeiland, veel kastruimte en moderne inbouwapparatuur (Etna en Pelgrim), waaronder een inductiekookplaat met instelbare kookzones en geïntegreerde afzuiging, een koel-vriescombinatie, combi-oven/magnetron en een vaatwasser met verlichting. De dimbare inbouwspots zorgen voor een prettige sfeer.

De doorzonwoonkamer is licht en ruim, voorzien van een mooie laminaatvloer (2021), een airco die zowel kan verwarmen als koelen, een elektrische haard die eveneens kan verwarmen en elektrische rolluiken voor extra comfort en privacy. Via de openslaande karakteristieke tuindeuren stapt u zo het terras in de achtertuin op. Via de keuken bereikt u de eetkamer, een gezellige ruimte met veel licht dankzij het grote raam met uitzicht op de tuin. Deze kamer beschikt over dezelfde fraaie laminaatvloer en inbouwspots en is ideaal als eet- of werkruimte. De ruimte is bovendien voorzien van stijlvolle houten, zwarte openslaande deuren (2022), die karakter en sfeer toevoegen en toegang bieden tot de keuken. Een tweede hal met een extra voordeur maakt het mogelijk deze ruimte desgewenst te gebruiken als kantoor of praktijk aan huis.

Aan de achterzijde bevindt zich de praktische bijkeuken, betegeld en voorzien van een waterbak met afvoer (2021), met daarboven een handige bergzolder en voorzien van verwarming. Hier vindt u ook de cv-installatie (2019), de aansluitingen voor wasmachine en droger en een deur naar de achtertuin.

Eerste verdieping

De overloop met laminaatvloer geeft toegang tot drie slaapkamers en de badkamer.
De slaapkamers zijn voorzien van laminaatvloeren, veel daglicht en rolluiken. De master bedroom (aan de achterzijde) beschikt bovendien over een airco én een vaste kastenwand tot aan het plafond, wat veel bergruimte biedt en de kamer een strak en verzorgd uiterlijk geeft.
De kleinste slaapkamer aan de achterzijde heeft een muurkast en geeft toegang tot de vaste trap naar de zolder. De moderne badkamer is ruim en licht en voorzien van een rolluik en elektrische vloerverwarming. Er is een inloopdouche met regendouche en matzwarte inbouwkranen, een zwevend toilet, een stijlvol badkamermeubel met waskom en een verwarmde spiegel met verlichting. Dimbare inbouwspots en een zwarte designradiator maken het geheel compleet. De elektrische afzuiging schakelt automatisch in bij dampvorming. Via de vaste trap in de kleinste slaapkamer bereikt u de zolder. Deze ruimte is nu in gebruik als berging, maar kan met enkele aanpassingen eenvoudig worden ingericht als vierde slaapkamer of werkkamer.

Tuin

De woning beschikt over een verrassend diepe en goed verzorgde achtertuin, die gunstig is gesitueerd en de hele dag veel zonuren biedt. Direct aan de woning ligt een ruim terras, perfect om buiten te dineren of te ontspannen. Het strak onderhouden gazon, de druivenstruik die langs de bijkeuken groeit en de vaste struik op het terras geven de tuin een verzorgde en charmante uitstraling. De tuin grenst aan de rustige kanaalzijde, zonder directe bebouwing, wat veel privacy biedt. Vanuit de tuin ziet u soms de grote schepen rustig voorbijvaren. De tuin is volledig omsloten door nieuwe schuttingen, waardoor u in alle rust kunt genieten van de buitenruimte. Daarnaast is er een praktische antivrieskraan aanwezig (2021, vernieuwd in 2023).

Bijzonderheden

*Energielabel B
*12 glas-glas zonnepanelen (410 wp)
*Dakisolatie bij zowel pannendak als plat dak (plat dak vernieuwd en geïsoleerd in 2025)
*Spouwmuurisolatie (2021), vloerisolatie eetkamer (2021)en bodemisolatie woonkamer (2022)
*Plafond en buitenmuren bijkeuken geïsoleerd (2021/2022)
*Airco in woonkamer en master bedroom (2022) met buitenunit in nette ombouw
*HR++-glas in alle ramen, inclusief nieuwe kunststof kozijnen (2021) en pui eetkamer (2022); voorraam met extra geluidswerend glas
*Voor- en achterdeur voorzien van HR++-glas, openslaande tuindeuren voorzien van tochtstrippen en voorzetglas
*Rolluiken vernieuwd in 2021 (beneden elektrisch, boven deels elektrisch)
*Nieuw pannendak met dampopen folie, nieuwe panlatten, nieuwe dakgoten voor en achter, lood vervangen rond schoorsteen (2022)
*Volledig nieuw bitumen dak op uitbouw inclusief isolatie (2025)
*Vernieuwde elektra-, gas- en waterleidingen (2021), inclusief nieuwe meterkast en verzwaring van de aansluiting buiten naar 3×25 Ampère
*Nieuwe radiatoren (2021), met uitzondering van de grote radiator in de eetkamer (voorzien van een fraaie zwarte ombouw)
*Vernieuwde laminaatvloeren en plinten (2021), alles gestuct en geschilderd (2021/2022)
*Vaste trap naar de zolder, waardoor deze ruimte eenvoudig bereikbaar is en extra potentie biedt voor bijvoorbeeld een vierde slaapkamer of werkruimte
*Onderhoudsvriendelijke voortuin met parkeerplaats op eigen terrein

Kaart

Kenmerken

Overdracht

Referentienummer
00110
Vraagprijs
€ 350.000,- k.k.
Inrichting
Niet gestoffeerd
Inrichting
Niet gemeubileerd
Status
Verkocht
Aanvaarding
In overleg
Aangeboden sinds
Vrijdag 3 oktober 2025
Laatste wijziging
Dinsdag 2 december 2025

Bouw

Type object
Woonhuis, eengezinswoning, tussenwoning
Soort bouw
Bestaande bouw
Bouwperiode
1958
Dakbedekking
Dakpannen
Type dak
Zadeldak
Keurmerken
Energie prestatie advies
Isolatievormen
Grotendeels dubbel glas
Spouwmuren
Voorzetramen

Oppervlaktes en inhoud

Perceeloppervlakte
261 m²
Woonoppervlakte
125 m²
Inhoud
497 m³
Oppervlakte overige inpandige ruimten
29 m²

Indeling

Aantal bouwlagen
4
Aantal kamers
4 (waarvan 3 slaapkamers)
Aantal badkamers
1 (en 1 apart toilet)

Locatie

Ligging
Aan vaarwater
Dichtbij openbaar vervoer
In bosrijke omgeving
Nabij snelweg

Tuin

Type
Voortuin
Oriëntering
West
Staat
Aangelegd onder architectuur
Tuin 2 - Type
Achtertuin
Tuin 2 - Hoofdtuin
Ja
Tuin 2 - Oriëntering
Oosten
Tuin 2 - Staat
Prachtig aangelegd

Energieverbruik

Energielabel
B

CV ketel

CV ketel
Remeha Avanta
Warmtebron
Gas
Bouwjaar
2019
Combiketel
Ja
Eigendom
Eigendom

Uitrusting

Aantal parkeerplaatsen
1
Warm water
CV-ketel
Verwarmingssysteem
Airconditioning
Centrale verwarming
Ventilatie methode
Mechanische ventilatie
Keukenvoorzieningen
Inbouwapparatuur
Badkamervoorzieningen
Inloopdouche
Toilet
Wastafel
Wastafelmeubel
Heeft airco
Ja
Glasvezelaansluiting aanwezig
Ja
Tuin aanwezig
Ja
Beschikt over een internetverbinding
Ja
Heeft rolluiken
Ja
Heeft zonnepanelen
Ja
Heeft ventilatie
Ja

Kadastrale gegevens

Kadastrale aanduiding
Stein B 4409
Perceeloppervlakte
261 m²
Omvang
Geheel perceel
Eigendomsituatie
Eigen grond

Brochure(s) en overige bijlagen

Raadhuisstraat 48 Urmond.pdf Download