ODC Vastgoed
ODC Vastgoed
Verkocht:De Wendelstraat 29, 6372 VT Landgraaf - Foto
Verkocht
+31

De Wendelstraat 29 6372 VT Landgraaf

  • Woonhuis
  • 4 kamers
  • 3 slaapkamers
  • 1 badkamers
  • Bouwjaar 1950
  • 235 m² perceeloppervlakte
  • 84 m² gebruiksoppervlakte
  • D Energielabel D

Beschrijving

Wonen op een fijne plek in Landgraaf – instapklare en goed onderhouden hoekwoning met garage

Deze instapklare hoekwoning aan de Wendelstraat 29 in Landgraaf is ideaal voor wie zonder veel werk wil verhuizen. De woning beschikt over een eigen oprit en garage, die achter in de tuin ligt en bereikbaar is via een afsluitbare dubbele poort.

Op de begane grond bevinden zich een lichte woonkamer en een halfopen keuken met directe toegang tot de tuin. Op de eerste verdieping zijn drie slaapkamers en een moderne badkamer te vinden, terwijl de bergzolder op de tweede verdieping zorgt voor extra opslagruimte. Daarnaast beschikt de woning over een provisiekelder.

De woning is grotendeels voorzien van kunststof kozijnen met HR++ glas en rolluiken. Dit maakt het onderhoud eenvoudig en zorgt voor extra comfort. Het energielabel D geeft een solide basis en biedt nog mogelijkheden om de woning verder te verduurzamen.

Alle dagelijkse voorzieningen bevinden zich op korte afstand. Zo zijn er diverse supermarkten, scholen, kinderopvang en sportclubs in de directe omgeving. Ook het gezellige centrum van Landgraaf ligt op slechts enkele minuten fietsen.

Reizigers en forenzen profiteren van een gunstige ligging: de uitvalswegen richting Heerlen, Kerkrade, Maastricht en Duitsland zijn eenvoudig bereikbaar. Daarnaast ligt het treinstation van Landgraaf op korte afstand, met goede verbindingen richting onder andere Heerlen en Sittard.

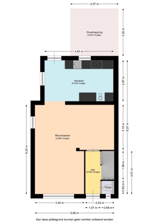
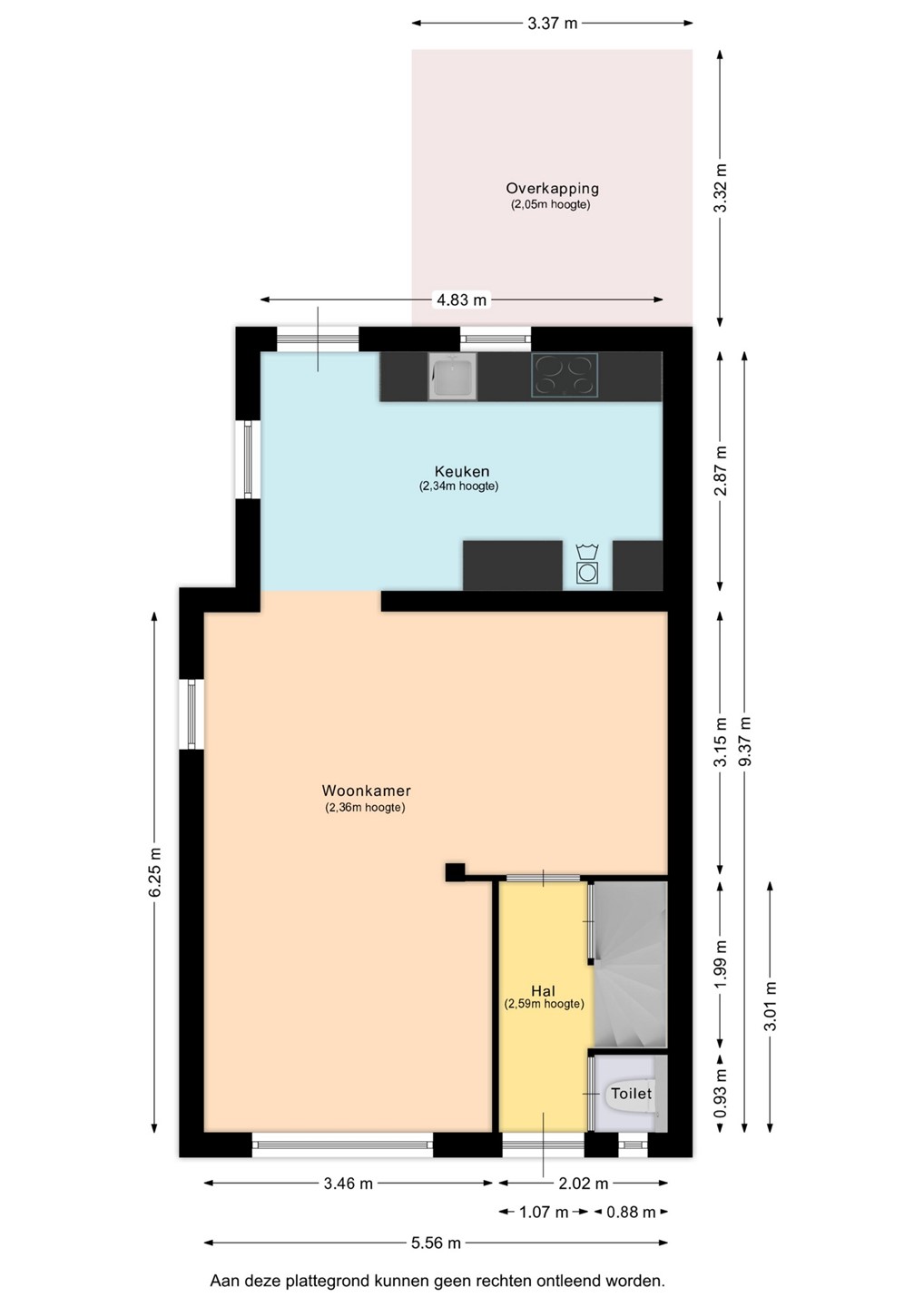
Indeling

Bij binnenkomst word je verwelkomd in de ontvangsthal, waar een nette vloertegel en een praktische garderobe zorgen voor een verzorgd geheel. Hier bevindt zich ook het toilet.

De woonkamer is verrassend licht en ruim dankzij de grote raampartij aan de voorzijde. Het natuurlijke licht zorgt samen met de laminaatvloer en de inbouwspots voor een warme en eigentijdse sfeer. Een fijne plek om te ontspannen of om samen te komen met familie en vrienden. Het rolluik aan de voorzijde is elektrisch bedienbaar, wat bijdraagt aan het comfort en de veiligheid.

De halfopen keuken is gerenoveerd in 2023 en vormt een mooi geheel met de woonkamer en heeft een frisse, moderne uitstraling. De combinatie van de laminaatvloer, strakke kastfronten en het donkere werkblad geeft de ruimte een stijlvolle en praktische look. Dankzij de slimme indeling heb je volop werk- en opbergruimte. De keuken is uitgerust met een inductiekookplaat, combi-heteluchtoven, vaatwasser en beschikt over de nodige aansluitingen voor witgoed. De aanwezige inbouwspots zorgen voor een prettige, heldere verlichting bij het koken.

Vanuit de keuken heb je bovendien direct toegang tot de achtertuin.

Eerste verdieping

De overloop leidt naar drie slaapkamers, elk voorzien van een laminaatvloer, kunststofkozijnen met voldoende lichtinval en rolluiken. De kleinste kamer is perfect geschikt als logeer- of werkkamer.

De badkamer, in 2022 volledig gerenoveerd, straalt modern comfort en kwaliteit uit. De ruimte is stijlvol geheel betegeld en voorzien van een zwevend badkamermeubel met wastafel en een bijpassende spiegel met verlichting. De ruime inloopdouche met glazen deur en het zwevende toilet zorgen voor een eigentijdse uitstraling. Het aanwezige raam met rolluik zorgt voor natuurlijke lichtinval en de mogelijkheid om goed te ventileren, wat bijdraagt aan een frisse en aangename sfeer. De designradiator maakt de ruimte compleet en zorgt voor extra comfort. Het geheel voelt fris, verzorgd en luxe aan – een fijne plek om de dag goed te beginnen.

Via een vlizotrap bereik je de bergzolder, een praktische opslagruimte waar zich ook de cv-ketel bevindt. Een ideale plek voor spullen die je niet dagelijks nodig hebt.

Tuin

De achtertuin is onderhoudsvriendelijk aangelegd en beschikt over een royaal betegeld terras. Tegelijkertijd biedt de tuin voldoende ruimte om deze naar eigen wens aan te kleden met beplanting, waardoor je er eenvoudig een groene en sfeervolle buitenruimte van kunt maken. De overkapping met verlichting maakt het mogelijk om ook ’s avonds of bij minder weer comfortabel buiten te zitten. Dankzij de beschutte ligging geniet je hier van veel privacy en is het een ideale plek voor een gezellige barbecue of een rustig moment in de zon.

Via de tuin heb je direct toegang tot de garage, die is voorzien van een elektrische kantelpoort.

Deze ruimte biedt niet alleen plaats voor het veilig stallen van de auto, maar is ook zeer geschikt voor het opbergen van fietsen, tuinmeubilair en gereedschap. De combinatie van praktische indeling en comfort maakt de tuin tot een aantrekkelijk verlengstuk van de woning.

Bijzonderheden

• Instapklare hoekwoning in rustige straat
• Eigen oprit en garage met elektrische kantelpoort
• Geheel voorzien van kunststof kozijnen met HR++ glas (m.u.v. toiletraam)
• Grotendeels voorzien van rolluiken, waarvan het rolluik in de woonkamer elektrisch
• Energielabel D
• Moderne badkamer (2022) met inloopdouche en zwevend toilet
• Keuken in 2023 vernieuwd
• Praktische provisiekelder en bergzolder via vlizotrap
• Onderhoudsvriendelijke achtertuin met overkapping en verlichting

De informatie is met de nodige zorgvuldigheid door ons samengesteld. Er kunnen geen rechten worden ontleend aan deze advertentie en brochure en aanvaarden wij geen enkele aansprakelijkheid voor enige onvolledigheid, onjuistheid of anderszins, dan wel de gevolgen daarvan. Maatvoeringen en oppervlakten zijn indicatief.

Kaart

Kenmerken

Overdracht

Referentienummer
00117
Vraagprijs
€ 265.000,- k.k.
Status
Verkocht
Aanvaarding
In overleg
Aangeboden sinds
Donderdag 30 oktober 2025
Laatste wijziging
Zaterdag 15 november 2025

Bouw

Type object
Woonhuis, eengezinswoning, hoekwoning
Soort bouw
Bestaande bouw
Bouwperiode
1950
Dakbedekking
Dakpannen
Type dak
Zadeldak

Oppervlaktes en inhoud

Perceeloppervlakte
235 m²
Woonoppervlakte
84 m²
Inhoud
328 m³
Oppervlakte overige inpandige ruimten
30 m²
Oppervlakte externe bergruimte
29 m²
Oppervlakte gebouwgebonden buitenruimte
11 m²

Indeling

Aantal bouwlagen
3 (en 1 kelder)
Aantal kamers
4 (waarvan 3 slaapkamers)
Aantal badkamers
1 (en 1 apart toilet)

Tuin

Type
Achtertuin
Hoofdtuin
Ja
Oriëntering
Oosten
Heeft een achterom
Ja
Staat
Normaal
Tuin 2 - Type
Voortuin
Tuin 2 - Oriëntering
West
Tuin 2 - Staat
Normaal

Energieverbruik

Energielabel
D

CV ketel

CV ketel
Bosch 30 HR
Warmtebron
Gas
Bouwjaar
2009
Combiketel
Ja
Eigendom
Huur

Uitrusting

Aantal parkeerplaatsen
2
Warm water
CV-ketel
Verwarmingssysteem
Centrale verwarming
Keukenvoorzieningen
Inbouwapparatuur
Badkamervoorzieningen
Inloopdouche
Toilet
Wastafelmeubel
Parkeergelegenheid
Vrijstaande stenen garage
Tuin aanwezig
Ja
Heeft een garage
Ja
Heeft rolluiken
Ja

Kadastrale gegevens

Kadastrale aanduiding
Landgraaf B 524
Perceeloppervlakte
235 m²
Omvang
Geheel perceel
Eigendomsituatie
Eigen grond