ODC Vastgoed
ODC Vastgoed
Verkocht:Burgemeester Loysonstraat 16, 6373 PC Landgraaf - Foto
Verkocht
+33

Burgemeester Loysonstraat 16 6373 PC Landgraaf

  • Woonhuis
  • 4 kamers
  • 3 slaapkamers
  • 1 badkamer
  • Bouwjaar 1953
  • 258 m² perceeloppervlakte
  • 87 m² gebruiksoppervlakte
  • C Energielabel C

Beschrijving

Gezinswoning met drie slaapkamers, zonnige tuin en eigen garage

n de rustige en geliefde Brugemeester Loysonstraat in Landgraaf staat deze twee-onder-een-kapwoning met garage. Het huis biedt een prettige indeling met een doorzonwoonkamer, open keuken en drie slaapkamers. Praktische extra’s zoals grotendeels kunststof kozijnen met HR++ glas, rolluiken en zes zonnepanelen zorgen voor extra comfort en gebruiksgemak. De nette voortuin, de handige provisiekelder en de achtertuin met overkapping en veel privacy maken het geheel compleet.

De ligging is bovendien bijzonder gunstig: op loopafstand vind je supermarkten, basisscholen en sportvoorzieningen. Ook het gezellige winkelcentrum van Landgraaf en diverse eetgelegenheden zijn snel bereikbaar. Dankzij de nabijgelegen uitvalswegen sta je binnen enkele minuten in Heerlen of Kerkrade en ben je via de A76 of N281 snel onderweg richting Maastricht, Aken of Eindhoven.

Indeling

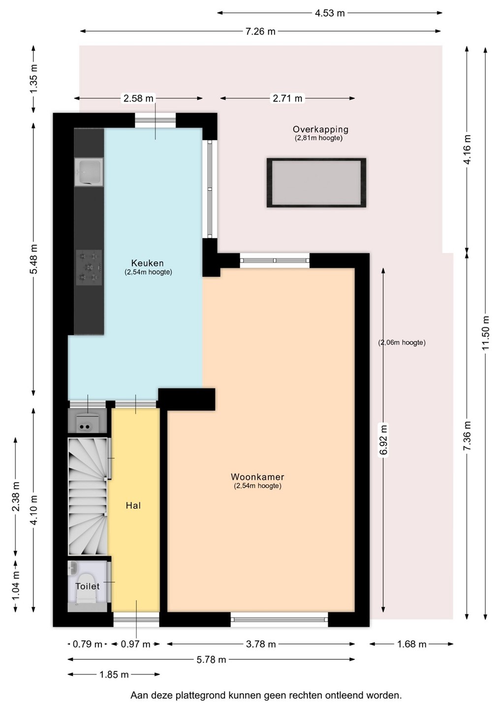
De voortuin is netjes en onderhoudsvriendelijk aangelegd. Via de entree met tegelvloer kom je in de ontvangsthal met garderobe, meterkast (vernieuwd in 2016) en toegang tot de provisiekelder. In deze kelder bevinden zich tevens de witgoedaansluitingen. Daarnaast is er op de begane grond een separaat toilet aanwezig, uitgerust met staand closet en fonteintje. De woonkamer is een fijne doorzonkamer met veel daglicht en een laminaatvloer. Dankzij de rolluiken is er eenvoudig een gezellige sfeer en privacy te creëren. De woonkamer loopt door in een uitbouw, waar de open keuken is gesitueerd. De keuken is eveneens voorzien van laminaatvloer en is zowel via de woonkamer als via de hal bereikbaar. Hier vind je volop kastruimte en inbouwapparatuur: keramische kookplaat, afzuiging, heteluchtoven, koelkast, vriezer en een vaatwasser (nieuw in 2025). Een muurkast biedt plaats aan de cv-installatie. Vanuit de keuken is er toegang tot de achtertuin.

Eerste verdieping

De trap met tapijt leidt naar de overloop met laminaatvloer. Op deze verdieping bevinden zich drie slaapkamers, allen voorzien van laminaatvloeren, rolluiken en Duco Dauerlüftung. Dankzij het daglicht zijn de kamers prettig in gebruik, of het nu als slaapkamer, logeer- of werkkamer is.

De badkamer (2011) is modern en compleet: geheel betegeld, met een zwevend badkamermeubel met wasbak en spiegel, een toilet en een inloopdouche met glazen wand. De badkamer is compact maar compleet ingericht met een douchecabine, wastafel, zwevend toilet en raam met Dauerlüftung en rolluik. Via de kastruimte in de kleine slaapkamer is middels een losse trap de bergzolder te bereiken.

Tuin

De achtertuin is onderhoudsvriendelijk aangelegd en biedt verrassend veel ruimte en privacy. Direct achter de woning bevindt zich een royaal terras met een overkapping, voorzien van een lichtkoepel. Hierdoor kun je hier niet alleen tijdens zonnige dagen, maar ook bij minder weer heerlijk buiten zitten. Verder is er voldoende plek voor groen of speelruimte en staat er een praktische schuur voor extra bergruimte. Via de tuin bereik je de ruime garage met sectionaalpoort, die ook toegankelijk is vanaf de achterzijde van het perceel.

Bijzonderheden

Bijzonderheden:

- Twee-onder-een-kapwoning met garage
- Energielabel C
- Grotendeels kunststof kozijnen met HR++ glas
- Rolluiken aanwezig
- 6 zonnepanelen
- Meterkast vernieuwd in 2016
- 3 slaapkamers
- Garage met sectionaalpoort bereikbaar via achterzijde

*** Opgegeven tuinmaten zijn circa maten ***

Kaart

Kenmerken

Overdracht

Referentienummer
00106
Vraagprijs
€ 225.000,- k.k.
Inrichting
Niet gestoffeerd
Inrichting
Niet gemeubileerd
Status
Verkocht
Aanvaarding
In overleg
Aangeboden sinds
Vrijdag 19 september 2025
Laatste wijziging
Donderdag 6 november 2025

Bouw

Type object
Woonhuis, eengezinswoning, twee onder een kap woning
Soort bouw
Bestaande bouw
Bouwperiode
1953
Dakbedekking
Dakpannen
Type dak
Zadeldak
Isolatievormen
Grotendeels dubbel glas
HR-glas
Spouwmuren

Oppervlaktes en inhoud

Perceeloppervlakte
258 m²
Woonoppervlakte
87 m²
Inhoud
273 m³
Oppervlakte externe bergruimte
30 m²
Oppervlakte gebouwgebonden buitenruimte
35 m²

Indeling

Aantal bouwlagen
3
Aantal kamers
4 (waarvan 3 slaapkamers)
Aantal badkamers
1 (en 1 apart toilet)

Locatie

Ligging
Aan rustige weg
In woonwijk

Tuin

Type
Voortuin
Hoofdtuin
Ja
Oriëntering
Noorden
Staat
Goed onderhouden
Tuin 2 - Type
Voortuin
Tuin 2 - Heeft een achterom
Ja
Tuin 2 - Staat
Normaal

Energieverbruik

Energielabel
C

CV ketel

CV ketel
Nefit Eco Comfort
Warmtebron
Gas
Bouwjaar
2017
Combiketel
Ja
Eigendom
Huur

Uitrusting

Aantal parkeerplaatsen
2
Aantal overdekte parkeerplaatsen
1
Warm water
CV-ketel
Verwarmingssysteem
Centrale verwarming
Keukenvoorzieningen
Inbouwapparatuur
Badkamervoorzieningen
Douche
Toilet
Wastafel
Parkeergelegenheid
Vrijstaande stenen garage
Tuin aanwezig
Ja
Heeft een garage
Ja
Heeft rolluiken
Ja
Heeft schuur/berging
Ja
Heeft zonnepanelen
Ja

Kadastrale gegevens

Kadastrale aanduiding
Landgraaf B 5257
Perceeloppervlakte
258 m²
Omvang
Geheel perceel
Eigendomsituatie
Eigen grond

Brochure(s) en overige bijlagen

Burgemeester Loysonstraat 16 Landgraaf.pdf Download