ODC Vastgoed
ODC Vastgoed
Verkocht:Middelburgstraat 8, 6415 BM Heerlen - Foto
Verkocht
+39

Middelburgstraat 8 6415 BM Heerlen

  • Woonhuis
  • 4 kamers
  • 3 slaapkamers
  • 1 badkamers
  • Bouwjaar 1951
  • 123 m² perceeloppervlakte
  • 97 m² gebruiksoppervlakte
  • C Energielabel C

Beschrijving

In een rustige en geliefde woonstraat in Heerlen staat deze verrassend ruime tussenwoning met garage. De woning combineert een praktische indeling met volop leefruimte, waardoor dit huis ideaal is voor gezinnen, stellen of iedereen die comfortabel en centraal wil wonen. Dankzij de aanbouw aan de achterzijde beschikt u over een royale woonkamer met veel daglicht en openslaande deuren naar de tuin, terwijl de kelder, drie slaapkamers, moderne badkamer en zolder met vaste trap voor nog meer ruimte en mogelijkheden zorgen.

De locatie van deze woning is bijzonder gunstig. Op korte afstand vindt u diverse voorzieningen zoals supermarkten, winkels, basisscholen en kinderopvang. Ook sportverenigingen, speelgelegenheden en openbaar vervoer zijn in de directe omgeving aanwezig. Met de auto bent u binnen enkele minuten op de uitvalswegen richting het centrum van Heerlen, Sittard of Maastricht. Hier woont u rustig in een woonwijk, maar toch met alle dagelijkse voorzieningen binnen handbereik.

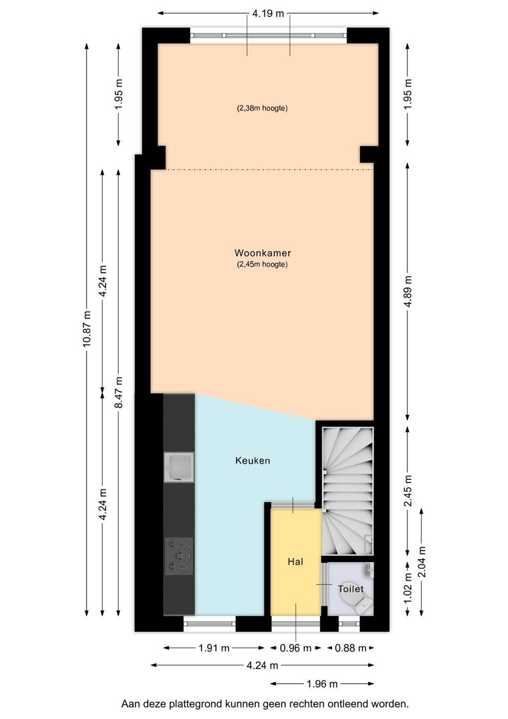
Indeling

Via een trap bereikt u de onderhoudsvriendelijke voortuin. De entree leidt naar de ontvangsthal met grindvloer, garderobe, meterkast en een toilet voorzien van staand closet en fonteintje.
De ruime woonkamer, eveneens voorzien van een grindvloer, geniet van veel daglicht dankzij de aanbouw aan de achterzijde. Via de openslaande deuren staat de woonkamer in directe verbinding met het terras in de achtertuin. Rolluiken zorgen hier voor extra comfort en privacy. Vanuit de woonkamer is er tevens toegang tot de kelder: een royale ruimte verdeeld in twee gedeeltes, voorzien van een tegelvloer, aansluitingen voor witgoed en de cv-installatie. an de voorzijde van de woning bevindt zich de open keuken met grindvloer. Ook hier zijn rolluiken aanwezig. De keuken biedt volop kastruimte en is uitgerust met diverse inbouwapparatuur: een 5-pits gasfornuis, wandafzuigkap, oven en koelkast.

Eerste verdieping

Via de vaste trap bereikt u de eerste verdieping, waar de overloop is afgewerkt met een grindvloer. Op deze etage bevinden zich twee ruime slaapkamers die beide zijn voorzien van grindvloeren, grote ramen en rolluiken. De kamer aan de achterzijde beschikt over een praktische inloopkast, wat zorgt voor extra bergruimte en een overzichtelijke inrichting. De slaapkamer aan de voorzijde is eveneens ruim en leent zich uitstekend als kinder- of werkkamer. De badkamer ligt centraal op de verdieping en heeft een verzorgde en moderne uitstraling. U beschikt hier over een ligbad met douche, een zwevend badkamermeubel met wastafel en een spiegel met geïntegreerde verlichting.

Tweede verdieping

Via een vaste trap bereikt u de zolderverdieping. Dankzij de dakkapel en laminaatvloer is deze ruimte uitstekend geschikt als derde slaapkamer, hobbyruimte of thuiskantoor.

Tuin

De achtertuin is verzorgd en onderhoudsvriendelijk aangelegd. Direct achter de woning ligt een terras dat ideaal is voor een zit- of eethoek. Verder is er voldoende ruimte om te genieten van het buitenleven, zonder dat er veel onderhoud nodig is. Achter in de tuin ligt de garage met kantelpoort en elektra, bereikbaar via de achterzijde én vanuit de tuin. Ook beschikt de tuin over een eigen achterom.

Bijzonderheden

*Energielabel C
*Ruime woonkamer door aanbouw
*Rolluiken aanwezig bij woonkamer, keuken en slaapkamers
*Ruime kelder met witgoedaansluitingen en cv-installatie
*Zolder met vaste trap
*Verzorgde, onderhoudsvriendelijke tuin met achterom
*Garage met kantelpoort en elektra
*Huurovereenkomst cv installatie dient mee overgenomen te worden € 45.91 p/mnd

Kaart

Kenmerken

Overdracht

Referentienummer
00107
Vraagprijs
€ 225.000,- k.k.
Status
Verkocht
Aanvaarding
In overleg
Aangeboden sinds
Vrijdag 19 september 2025
Laatste wijziging
Zaterdag 29 november 2025

Bouw

Type object
Woonhuis, eengezinswoning, tussenwoning
Soort bouw
Bestaande bouw
Bouwperiode
1951
Dakbedekking
Dakpannen
Type dak
Zadeldak
Isolatievormen
Dubbel glas

Oppervlaktes en inhoud

Perceeloppervlakte
123 m²
Woonoppervlakte
97 m²
Inhoud
256 m³
Oppervlakte overige inpandige ruimten
35 m²
Oppervlakte externe bergruimte
12 m²

Indeling

Aantal bouwlagen
4
Aantal kamers
4 (waarvan 3 slaapkamers)
Aantal badkamers
1 (en 1 apart toilet)

Locatie

Ligging
Aan rustige weg
Dichtbij openbaar vervoer
In woonwijk
Nabij school

Tuin

Type
Achtertuin
Hoofdtuin
Ja
Oriëntering
Zuidoost
Heeft een achterom
Ja
Staat
Goed onderhouden

Energieverbruik

Energielabel
C

CV ketel

CV ketel
Vaillant VHR NL 30-34/5-5R2
Warmtebron
Gas
Bouwjaar
2013
Combiketel
Ja
Eigendom
Huur

Uitrusting

Aantal parkeerplaatsen
1
Aantal overdekte parkeerplaatsen
1
Warm water
CV-ketel
Keukenvoorzieningen
Inbouwapparatuur
Badkamervoorzieningen
Douche
Ligbad
Wastafel
Wastafelmeubel
Parkeergelegenheid
Vrijstaande stenen garage
Tuin aanwezig
Ja
Heeft een garage
Ja
Beschikt over een internetverbinding
Ja
Heeft rolluiken
Ja
Heeft een schuifpui
Ja
Heeft zonwering
Ja

Kadastrale gegevens

Kadastrale aanduiding
Heerlen M 1642
Perceeloppervlakte
123 m²
Omvang
Geheel perceel
Eigendomsituatie
Eigen grond

Brochure(s) en overige bijlagen

Middelburgstraat 8 Heerlen (2).pdf Download